お客様理想の間取りになるようご提案させていただきます!
2018/05/04野口 展孝
こんにちは野口 展孝です。 今日の北軽井沢はいい天気ですけど肌寒いですね。 ジャンバーが必要なぐらいですよ。 午前中は建築中のN邸様ご来社いただきまして建築途中のログハウスをご覧になっていただきました。 実際みていただき「こうしたい」ということがありましたので可能な限り対応させていただくこととなりました。 N様ご家族に喜んでいただけるようスタッフ一同完成目指して頑張ります。今後ともどうぞ宜しくお願い申し上げます。

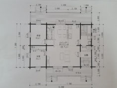
弊社ではお客様の理想のログハウスの間取りになるようフリープランで対応させていただいております。 先日弊社にお問合せがあり他社様の間取りで「こんな形でできますか」という問い合わせございまして少しアレンジしたプランを提出させていただきました。 作成したプランは平屋プランで1Fが15坪、梯子で登れる小屋裏5坪、20坪のプランだったのですが、お客から以下のご要望がございました。
「間取りはキット中から夫婦二人で暮らすならと選んでみましたが高原都市開発さんのkl-29の形が気に入っています。リビングが前後に繋がる感じ希望です。あとは孫などが来た時にロフトがあるといいかなっと?」
というご要望がございましたので写真のようなKL-29をベースにした間取りを提出させていただきました。
ご提出させていただいたところ、大変喜んでいただけたようでお礼のメールをいただきました。内容は控えさせていただきますが図面を提出して喜んでいただけたことに本当に嬉しく思いましたよ。
弊社はお客様からの間取りの変更やプラン作成は無料で作成させていただいております。 その部分は会社側としては手間かかり経費がかかる部分なのですが、少しでもお客様に喜んでいただければと思っております。 是非お気軽にログハウスの夢をぶつけてくださいね!!
一昨日、昨日と地区のお祭りでした。お祭りの雰囲気を子供たちと楽しんできましたよ!
ログハウスのブログランキングです。押して頂けると励みになります!!
最後までご覧いただきありがとうございます!
もしよろしければ、最後にこの記事をソーシャルメディアで共有してください。











