御代田市M邸様の基礎工事が始まりました!
2018/06/13野口 展孝
おはようございます。 野口 展孝です。 昨日は歴史的な米朝首脳会談がシンガポールで開かれましたね。 今まで一貫して表の舞台にでてこなかった金正恩氏ですが、ここ最近はかなり積極的に国際社会に進出してきている様子です。 これから本当に平和の道を進んでいくのか?!疑問に思ってしまいますが、こうやって表舞台にでてきただけでも大きない一歩です。 様々な問題がこれから解決していくよう切に願いますね。
お仕事の話ですが御代田市にてM邸様の基礎工事が始まりました。 現場は確認申請がなく工事届だけですがしっかりとした基礎をつくります。 ベタ基礎なので1F部分全面にまずは砕石をしっかり敷き詰めます。 いつものとおり安西さんが段取りよくすすめていますよ!!
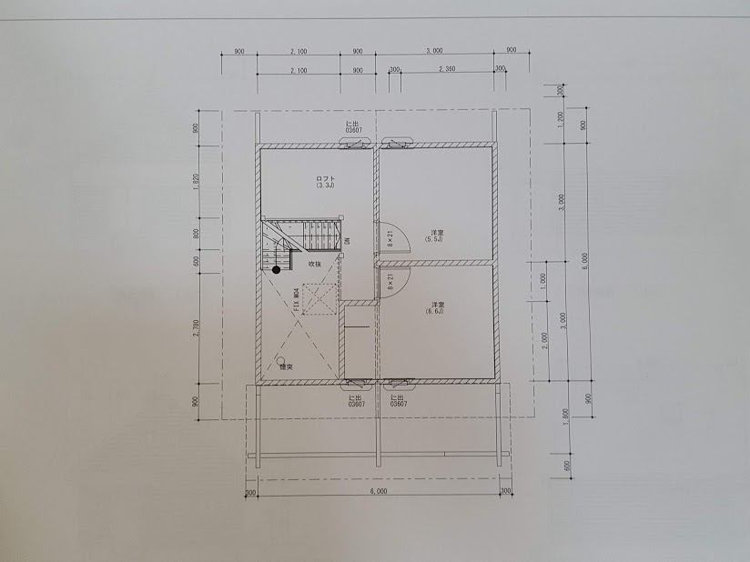
設計では軽井沢で件検討されているお客様の作図しています。 限られた予算のなかでお客様の要望をいかにこたえられるか!?ということで提案図面つくらせていただきました。 この図面で3回目ですが、ご要望に近づけるためにはまだまだ変更していく予定です!
弊社ではこのようにお客様のイメージに近づけるために設計を惜しみません。 モデルプランをアレンジするだけでOO万円かかります!!なんていう業者さんとやりとりしている方は是非お気軽にお問合せ下さいね!
では今日も頑張ります!
ログハウスのブログランキングです。押して頂けると励みになります!!
最後までご覧いただきありがとうございます!
もしよろしければ、最後にこの記事をソーシャルメディアで共有してください。














