Model-F様邸(長野県御代田市)
弊社得意の折れ屋根スタイルのマシンカットログハウス
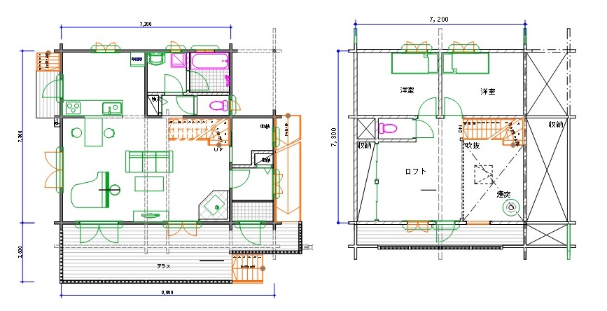
シベリアパインログハウス2階建て約30坪のコンパクトながら居住性の高い折れ屋根、
独立玄関のモデルです!!
土地を形状を利用した1.8mの高基礎ということもあって迫力ありますね。
駐車場からのアプローチもいい感じ。
弊社プランはなるべく独立玄関をご提案させていただいております。
特に軽井沢エリアは寒冷地でもありますので風除室にもなりますからね。
外壁色はキシラデコールのピニー。長野県はカラ松が多いですがそのカラマツの景色と似合うカラーリングでいい雰囲気です。
| モデル名 |
Model-F様邸 |
|---|---|
| 地域 | 長野県御代田市 |
| ログの種類 |
シベリアパイン中国ラミネート105×175㎜ |
| 用途 | |
| 延べ床 | 31坪 (㎡) |
| 施 工 |
設計 :高原都市開発㈱ 施工:高原都市開発㈱ |
| 建て方 |
2020年 1月 |
| 完 成 |
2020年 4月 |
| 備考 | 外壁:キシラデコール ピニー |
| 間取り |
KH-31アレンジプラン |
最後までご覧いただきありがとうございます!
もしよろしければ、最後にこの記事をソーシャルメディアで共有してください。



























