Model-K様邸(群馬県嬬恋村)
室内から愛車も眺められるガレージ付き別荘
| モデル名 |
Model-K様 |
|---|---|
| 地域 | 群馬県嬬恋村 |
| ログの種類 |
中国ラミネートログ105㎜×180㎜ 3層ラミネート シベリアレッドパイン |
| 用途 | 別荘 |
| 延べ床 | 31.93坪 |
| 施 工 |
高原都市開発㈱ |
| 建て方 |
2024年 8月 |
| 完 成 |
2024年 10月 |
| 備考 |
外部塗料 オリンピックマキシマム ウェッジウッド 窓枠:ホワイト |
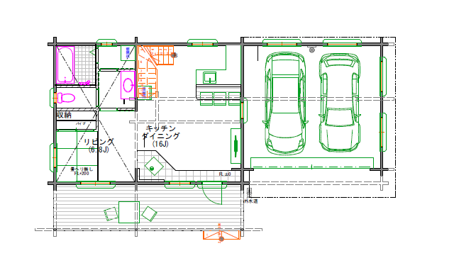
| 間取り |
ガレージ付き別荘 |
最後までご覧いただきありがとうございます!
もしよろしければ、最後にこの記事をソーシャルメディアで共有してください。








