Model-M様邸(群馬県北軽井沢)
北欧テイスト満載‼サウナ・水風呂も完備の可愛らしいログハウス
| モデル名 |
Model-M様 |
|---|---|
| 地域 | 群馬県北軽井沢 |
| ログの種類 |
中国ラミネートログ115㎜×180㎜ 3層ラミネート |
| 用途 | 貸別荘 |
| 延べ床 | 29.43坪 |
| 施 工 |
高原都市開発㈱ |
| 建て方 |
2024年 6月 |
| 完 成 |
2025年 8月 |
| 備考 |
外壁塗装:ティックリラ 薪ストーブ:ドブレ640WD |
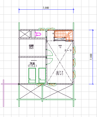
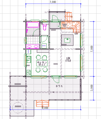
| 間取り |
最後までご覧いただきありがとうございます!
もしよろしければ、最後にこの記事をソーシャルメディアで共有してください。




























