Model-H様邸(長野県軽井沢町)
インテリアコーディネーターも入りスタイリッシュな保養所になりました
| モデル名 |
Model-H様邸 |
|---|---|
| 地域 | 長野県軽井沢町 |
| ログの種類 | |
| 用途 | 会社保養所 |
| 延べ床 | 55坪 |
| 施 工 |
高原都市開発㈱ |
| 建て方 |
2024年 9月 |
| 完 成 |
2025年 4月 |
| 備考 |
・在来工法 ・外壁塗装 ティックリラ ・インテリアコーディネーター Luna crescente(ルーナクレシェンテ)鈴木恵理子様 ・薪ストーブ ・床暖房 |
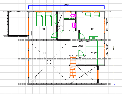
| 間取り |
最後までご覧いただきありがとうございます!
もしよろしければ、最後にこの記事をソーシャルメディアで共有してください。




























