Model-A様邸(神奈川県湯河原町)
お施主様セルフ工事満載。海の見えるログハウス。
弊社シベリアパインログハウスはコストパフォーマンスが高いこと!!+加工精度が高いんですよ!
中国加工ログハウスは2Fの柱長さがカットされていたり、ホゾが加工してますのでかなり小屋組み作業の時間短縮ができます。
ログ壁5段増しの21段。基礎も高いので迫力あります。海が毎日見えるのも羨ましいです。
A様は電気工事をこなすほど器用な腕前。
また収納扉、キッチンの大理石もご自身でセルフ工事しております。
1枚2枚ではなくかなりの量なので大変だったとは思いますが扉もいい感じでできておりますね。
いやいや大したものです。A様のなんでも挑戦する姿勢はホント見習わせていただいております。
| モデル名 |
Model-A様邸 |
|---|---|
| 地域 | 神奈川県湯河原町 |
| ログの種類 | ・中国ラミネート 105×175㎜ |
| 用途 | 住宅 |
| 延べ床 | 44.62坪 147.49(㎡) |
| 施 工 |
設計 :高原都市開発㈱ 施工:高原都市開発㈱ |
| 建て方 |
2020年 1月 |
| 完 成 |
2020年 4月 |
| 備考 |
A様セルフ工事 ・一部電気工事 ・キッチン吊戸棚造作、キッチン壁 大理石貼り |
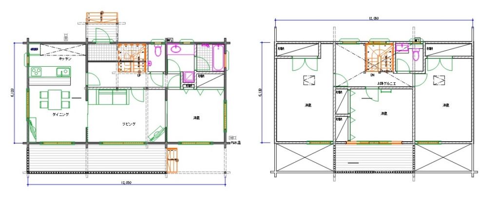
| 間取り |
A様オリジナルプラン |
最後までご覧いただきありがとうございます!
もしよろしければ、最後にこの記事をソーシャルメディアで共有してください。

























