Model-A様邸(群馬県嬬恋村)
スキャンDホームで北欧感満載の企業様保養所
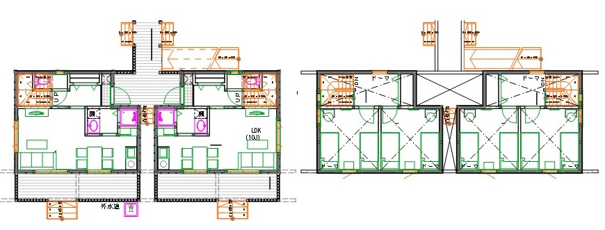
別荘地内にあるA企業様保養所は建物が18.5坪の宿泊施設2棟、20坪のプレイルームが1棟。すべて屋根でつなげております。<br>
スキャンDホームにて工事をさせていただき、室内は防火が絡む界壁以外はログパネルホワイト塗装、天井はパイン材、寝室のクロスには北欧テイストの感じのいいクロスが施され、北欧感満載の仕上げとなっておりますよ。<br>
1Fの屋根がかかっているテラスもいいですね、北軽井沢高原の爽やかな空気を楽しむことができます。<br>
プレイルームは平屋の40畳ございまして宿泊者が卓球したりレクレーションを楽しむことができ、企業研修にも使われる場所になりました。<br>
またリビングダイニングも小さいのですがお洒落に仕上がっております。木に包まれたやさしい空間がスキャンDホームにはあります。<br>是非ご検討下さいね!!
| モデル名 |
Model-A様邸 |
|---|---|
| 地域 | 群馬県嬬恋村 |
| ログの種類 | |
| 用途 |
企業様保養所 |
| 延べ床 |
18.5坪の宿泊施設2棟 20坪のプレイルーム1棟 |
| 施 工 | 設計 :高原都市開発㈱ 施工:高原都市開発㈱ |
| 建て方 |
2017年 10月 |
| 完 成 | 2018年 4月 |
| 備考 |
・スキャンDホーム ・天井:パイン材 ・壁:ログパネルホワイト塗装(寝室のクロス) |
| 間取り |
オリジナルプラン |
最後までご覧いただきありがとうございます!
もしよろしければ、最後にこの記事をソーシャルメディアで共有してください。























