Model-M様邸(長野県松本市)
奥様の趣味のために作られた離れのログハウス!!
M様宅は立派な母屋がございますが奥様の趣味部屋として離れを建築させていただきました!!
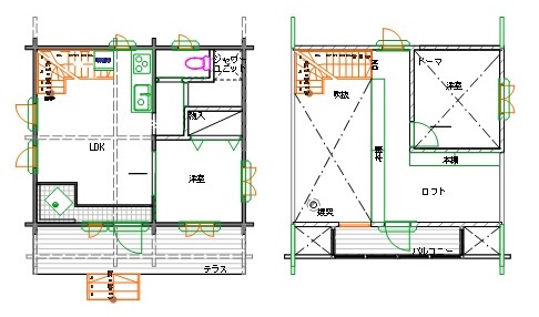
離れなのでそれほど大きくなく、約19坪のログハウスとなります。
奥様のご趣味で絵本が沢山ありまして2階を本の書庫とするために
建築させていただきました。
また隣には在来建築にて車庫も建築。
ウッド調のサイディング、室内はOBS合板と天井は板で施工され、
いい車庫となりましたね。
| モデル名 |
Model-M様邸 |
|---|---|
| 地域 | 長野県松本市 |
| ログの種類 |
中国105×175mm 3層ラミネート シベリアレッドパイン |
| 用途 |
離れ(趣味部屋) |
| 延べ床 | 18坪 60.52(㎡) テラス・バルコニー13.75㎡ |
| 施 工 | 設計 :高原都市開発㈱ 施工:高原都市開発㈱ |
| 建て方 |
2019年 3月 |
| 完 成 | 2019年 6月 |
| 備考 | |
| 間取り |
M様オリジナルプラン |
最後までご覧いただきありがとうございます!
もしよろしければ、最後にこの記事をソーシャルメディアで共有してください。



















