1. ログハウスキットの高原都市開発
  2. 建築実績
  3. Model-T様邸(群馬県沼田市)

Model-T様邸(群馬県沼田市)

太い梁と柱の構造美‼これぞポスト&ビーム

平均口径300mm。 国産杉のポスト&ビームですよ!

構造材は国産杉とポイントにレッドシダー! 丸太の構造美が格好いいですね!

1階は珪藻土+腰壁仕様。2階はスキャンDホーム風のホワイト塗装したログパネル施工しています。

塗装はキシラデコールのスプルースと屋根のレンガ色がいい感じとなってますね。

棟まで吹き抜けており高さ約7mあるので気持ちのいい空間ですね。

太い梁と柱の構造美と室内は木を多く利用してぬくもりある空間となりました。

これぞポスト&ビームといった切妻屋根&色合い!作り手としてはかなり満足しています。

雰囲気最高ですね!!

モデル名

Model-T様邸

地域 群馬県沼田市
ログの種類

ポスト&ビーム  

構造材:国産杉・ポイントにレッドシダー

用途 住宅
延べ床 41坪 137(㎡) 
施 工

設計 :高原都市開発㈱  施工:高原都市開発㈱

建て方

2019年 12月

完 成

2020年   4月

備考

1F:パイン腰壁、腰上は珪藻土

2F壁:ホワイト塗装ログパネル張り 

塗装:キシラデコールのスプルース

床暖房工事:トップハウス

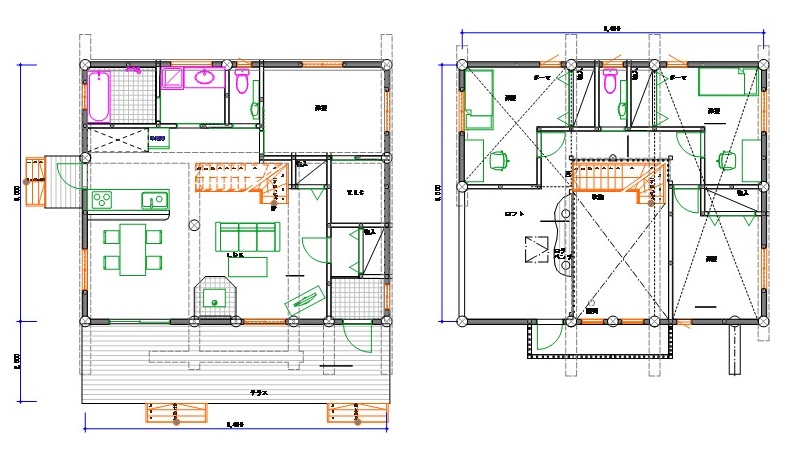
間取り

T様オリジナルプラン

 


最後までご覧いただきありがとうございます!

もしよろしければ、最後にこの記事をソーシャルメディアで共有してください。

前後の記事



このページの先頭へ