Model-Villaホテル様(長野県軽井沢)
間口約15mの北欧ポスト&ビーム! 切妻屋根迫力ありますよ!!
どんな角度からとっても絵になる格好いい建物です!
構造材、窓、ドア、ガラスをすべて北欧から輸入した北欧テイスト満載のポスト&ビーム!
すべて自社輸入、自社施工にて作り上げました!
提携エストニア工場にて材料を加工して提携窓ドア工場にてFIXガラスや窓ドアを輸入。
ガラスはトリプルガラスで断熱効果も高いです。
フリープランにもちろん対応していますので自由度の高い設計できます。
もちろん住宅仕様にいろいろアレンジすることも可能ですよ!
外部塗装は北欧フィンランドの塗料メーカー「ティックリラ」 バルティアーク
という塗料で表面に光沢があります。 ホテルの印象も高級なイメージになりますね。
| モデル名 |
Model-Villaホテル様 |
|---|---|
| 地域 | 長野県軽井沢 |
| ログの種類 |
エストニア 北欧加工のポスト&ビーム |
| 用途 | 貸別荘 |
| 延べ床 | ・宿泊等3棟+管理棟1棟 延床 136坪 |
| 施 工 |
施工:高原都市開発㈱ |
| 建て方 |
2019年 5月 |
| 完 成 |
2020年 12月 |
| 備考 |
塗料:柱エボニー、壁ティックリラのVALTI ARCTICのIvalo。 軒裏VALTIカラーのTuohi 全面シームレス床暖房 |
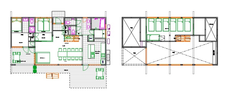
| 間取り |
O様オリジナルプラン |
最後までご覧いただきありがとうございます!
もしよろしければ、最後にこの記事をソーシャルメディアで共有してください。



























