1. ログハウスキットの高原都市開発
  2. 建築実績
  3. Model -T様邸 (埼玉県本庄市)

Model -T様邸 (埼玉県本庄市)

屋根瓦は三州野安瓦のセラマウントシリーズ3色を使った混載仕上げ、 Dログのアールの表面も格好いいです!!

ログキットは中国、窓は日本(YKKーAPWの樹脂窓)外ドアは北欧ドアのコラボレート!       外壁はキシラデコールのワイス塗装で住宅街にマッチしていますね~。

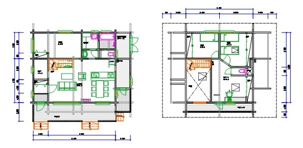
ログ壁5段増しで2階の居住性アップ。パントリーがあり収納力抜群の間取りとなっております。

屋根瓦は三州野安瓦のセラマウントシリーズを使用しておりまして3色を使った混載仕上げです。お洒落ですね~! 瓦と外壁の相性がいいのでいい感じに仕上がりました。

Dログのアールの表面も格好いいです!!

 

モデル名 Model-T様邸
地域 埼玉県本庄市
ログの種類

・中国135mm×175mmラミネートDログ

シベリアレッドパイン 

用途  住宅
延べ床 36.93坪 122.06(㎡) テラス・バルコニー28.80㎡
施 工 キット輸入設計 :高原都市開発㈱  施行:高原都市開発㈱
建て方 2016年6月
完 成 2016年12月
備考  
間取り

 

 


最後までご覧いただきありがとうございます!

もしよろしければ、最後にこの記事をソーシャルメディアで共有してください。

前後の記事



このページの先頭へ