Model-Y様邸(群馬県嬬恋村)
太陽光パネル10キロ搭載。ゼロエネルギー住宅を考えた屋根形状
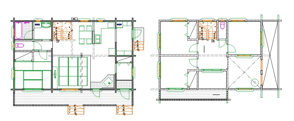
Y様は高原都市スタッフ野口展孝と同級生になります。 奥様がマイホームがほしいという強い願望でY様は一発奮起してログハウスを建築。 奥様が建てるならログハウスがいいということで弊社を選んでいただいた経緯があります。 間取りはY君と私とで相談して進めさせていただきました。 太陽光を10kWのせたいということで屋根形状は南傾斜の片流れ屋根プランに決定しました。 太陽光はセルフキットにて自分で施工。 屋根一面にのる太陽光パネルは圧巻ですね。 リビングは和テイストを取り入れた小上がり。 キッチン後ろにはパントリーがあり大容量の収納もできました。 1階には客間。 2階には寝室と子供2部屋あり家族4人が暮らすには十分な広さとなりました。 Y様は長野県の薪ストーブ屋さんに勤めているので煙突もセルフ施工。 これから薪ストーブを入れる予定です。
外観色は白を基調に精錬されたスタイルとなりました。いい感じになりましたね!!
| モデル名 | Model-Y邸 |
|---|---|
| 地域 | 群馬県吾妻郡嬬恋村 |
| ログの種類 |
・フィンランド(欧州赤松)マシンカット113mm×180mmラミネートログハウス |
| 用途 |
住宅 |
| 延べ床 | 41.1坪(135.84㎡)テラス・バルコニー 23.27㎡ |
| 施 工 | キット輸入設計 :高原都市開発㈱ 施行:高原都市開発㈱ |
| 建て方 | 2016年1月 |
| 完 成 | 2016年4月 |
| 備考 |
・太陽光パネル10キロ搭載 |
| 間取り |
Y様フリープラン ゼロエネルギースタイル |
最後までご覧いただきありがとうございます!
もしよろしければ、最後にこの記事をソーシャルメディアで共有してください。



























