Model-H様邸(長野県軽井沢町)
軽井沢ヴィラスタイルのお洒落な家!
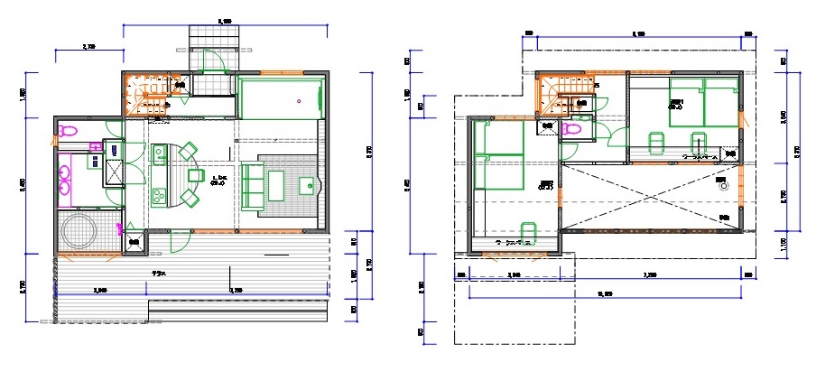
LDK吹き抜け部分がガラス張りの軽井沢ヴィラスタイルですよ。
片流れで軒裏から2F天井を一体感があるようにデザインしております。
レッドシダーの板が雰囲気いいですね。
お風呂はテラス面に面したジャグジーバスで大きな腰窓からテラスに出れますよ。
H邸様はログハウスではなく一般在来建築となります。
| モデル名 |
Model-H様邸 |
|---|---|
| 地域 | 長野県軽井沢町 |
| ログの種類 | |
| 用途 | 簡易宿所 |
| 延べ床 | |
| 施 工 |
|
| 建て方 |
|
| 完 成 |
2021年 7月 |
| 備考 |
|
| 間取り |
|
最後までご覧いただきありがとうございます!
もしよろしければ、最後にこの記事をソーシャルメディアで共有してください。



























