Model-I様邸(群馬県嬬恋村)
外壁カラーも侍ブルーでかっこよく仕上がっております!
外壁カラーも侍ブルーでかっこよく仕上がっております!外部カラーリングはI様セルフペイントでブルーベースで格好よく塗装されています!! 窓は三共さんの樹脂サッシスマージュです。 ユニットバスはハウステックになりますよ!
| モデル名 |
Model-I様邸 |
|---|---|
| 地域 | 群馬県嬬恋村 |
| ログの種類 |
・中国ラミネートログハウス 105㎜×175㎜ |
| 用途 |
住宅 |
| 延べ床 | 35.62坪 114.76(㎡) テラス・バルコニー23.20㎡ |
| 施 工 | 設計 :高原都市開発㈱ 施工: 高原都市開発㈱ |
| 建て方 |
2018年 3月 |
| 完 成 | 2018年 6月 |
| 備考 |
外部カラーリング:セルフペイント 窓:三共の樹脂サッシスマージュ ユニットバス:ハウステック |
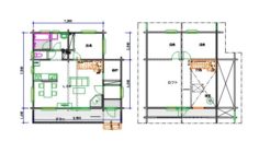
| 間取り |
KH-33アレンジプラン
|
最後までご覧いただきありがとうございます!
もしよろしければ、最後にこの記事をソーシャルメディアで共有してください。

















