Model-S様邸 (群馬県前橋市)
スキャンDホーム弊社第一号!!窓やドアは北欧の工場から直輸入。
基礎は弊社が代理店になっているタイトモールド基礎にて施工。 タイトモールド基礎は型枠自体が断熱材になっており、べた基礎の一体打ちが可能な画期的な商品です。 型枠の解体もないので現場もクリーンですよ!! なんでもそうですが足元、土台はしっかりと!!
キッチンはイケアのフレームを組み合わせて大工さんが造作し、オリンピックで塗装、ウレタン仕上げの弊社オリジナルです。ログハウス業者ならではのできる内装工事。 木のぬくもりに包まれた家づくりをご提供しますよ! ご興味ある方はぜひ一度お問合せ下さいね!
| モデル名 | Model-S様邸 |
|---|---|
| 地域 | 群馬県前橋市 |
| 住宅の種類 |
・在来工法 ScanD Home |
| 用途 | 住宅 |
| 延べ床 | 34.03坪 112.49(㎡) テラス・バルコニー25.65㎡ |
| 施 工 | キット輸入設計 :高原都市開発㈱ 施行:高原都市開発㈱ |
| 建て方 | 2017年3月 |
| 完 成 | 2017年6月 |
| 備考 | 基礎はタイトモールド基礎 |
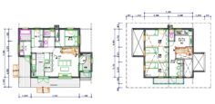
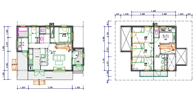
| 間取り | ![]() |
最後までご覧いただきありがとうございます!
もしよろしければ、最後にこの記事をソーシャルメディアで共有してください。























