Model -S様邸(群馬県渋川市)
建物、駐車場、テラス、バルコニーのすべてに屋根がかかっているお施主様の完全オリジナルフリープラン!
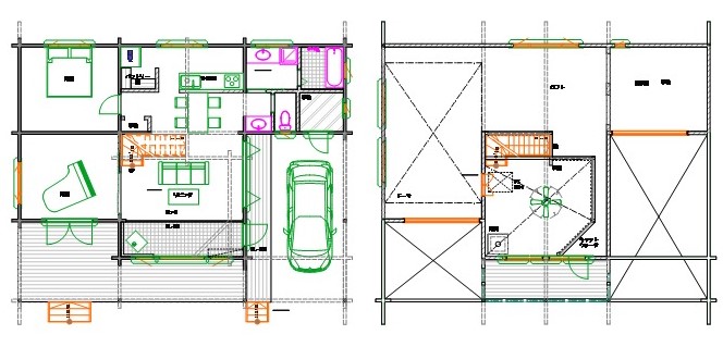
S邸様はお客様が設計のイメージを書いて、弊社のほうで1から作図した完全のオリジナルフリープランです。 大屋根の切妻スタイルが格好いいですね。
間口は13mで屋根勾配は4.5寸勾配。 3段増し積みして片側ドーマーですので部屋としても十分使える高さになっております。 掃き出しドアの前のテラスは3.5mありますが屋根がかかり何をするにも楽しい空間となりそうですね。
玄関前には大屋根がかかった駐車スペースもあります。 建物、駐車場、テラス、バルコニーのすべてに屋根がかかっているプランなんですよ。 細部の仕上げはお客様が施工しました。 キッチン前のタイルや玄関タイル、ストーブ炉壁もお客様施工、キッチン前のアンティークな板材貼り付けもお客様一部施工しました。 外部塗装もお客様セルフペイントですがいい感じの仕上がりとなりました。 北欧の大手メーカーさんのようなお洒落なカラーリングですね。
| モデル名 | Model-S様邸 |
|---|---|
| 地域 | 群馬県渋川市 |
| ログの種類 |
・フィンランド112mm×180mmラミネートログハウス 北欧レッドパイン |
| 用途 |
住宅 |
| 延べ床 | 46.22坪 152.78(㎡) テラス・バルコニー36.50㎡ |
| 施 工 | キット輸入設計 :高原都市開発㈱ 施行:高原都市開発㈱ |
| 建て方 |
2017年11月 |
| 完 成 | 2018年 3月 |
| 備考 | タイル貼り・ストーブ炉壁・外部塗装はお客様による施工 |
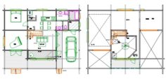
| 間取り |
S様フリープラン |
最後までご覧いただきありがとうございます!
もしよろしければ、最後にこの記事をソーシャルメディアで共有してください。























