Model-F様邸(長野県軽井沢町)
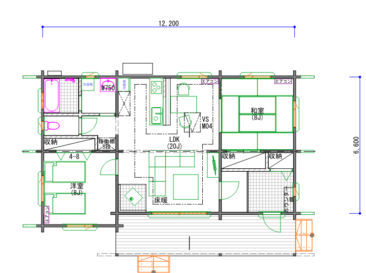
コンパクトでも機能的な平屋
和室あり収納も充実した機能的な間取りの平屋になりました。
| モデル名 |
Model-F様邸 |
|---|---|
| 地域 | 長野県軽井沢町 |
| ログの種類 |
中国115×180㎜三層ラミネート材 シベリアレッドパイン |
| 用途 | 別荘 |
| 延べ床 | 25坪 |
| 施 工 |
高原都市開発㈱ |
| 建て方 |
2022年 11月 |
| 完 成 |
2023年 4月 |
| 備考 |
・外壁キシラデコール ・フィルム式床暖房 |
| 間取り |
|
最後までご覧いただきありがとうございます!
もしよろしければ、最後にこの記事をソーシャルメディアで共有してください。














