ログハウス新モデルKBH30 限定2棟キャンペーン!
2012/03/01高原都市開発

限定2棟のみの価格!
総二階ログ 2階の空間利用大
独立玄関
建具はすべて木製
ログ壁は日の字で地震に強い設計
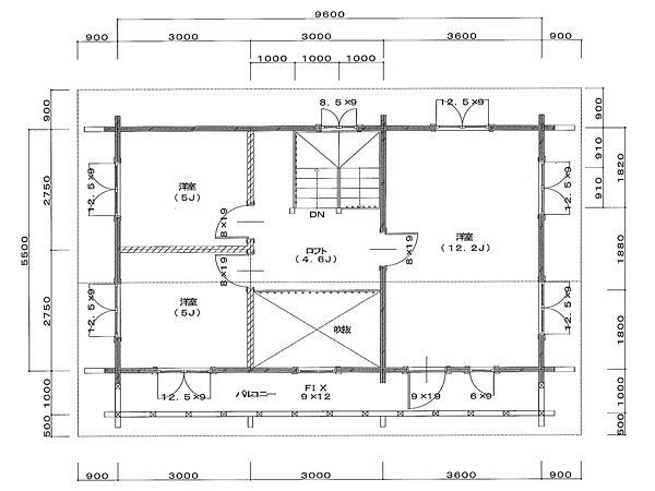
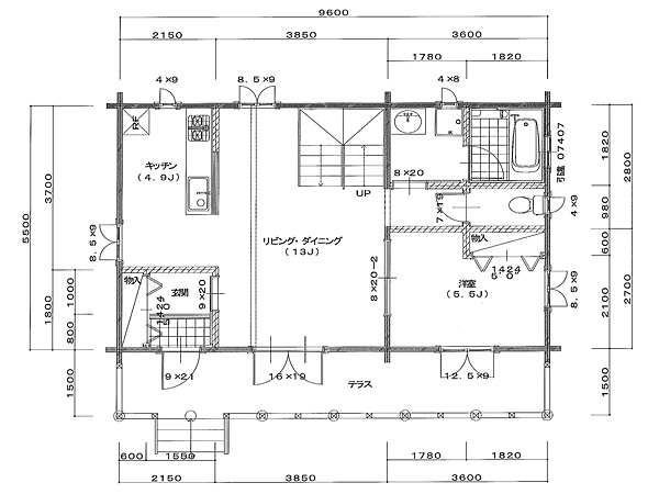
間取り図
※画像をクリックすると大きい画像が表示されます。
PDFファイルでの閲覧はこちらから
価格に含まれている設備機器一覧
完成価格には以下の設備機器が標準仕様です。
- システムキッチン(SUNWAVE製)
- システムバスルーム(INAX製)
- 洗面化粧台(INAX製)
- シャワートイレ(INAX製)
- エコキュート(コロナ製)
※リンクをクリックするとPDFファイルが開きます
太陽光発電も対応可能!
エコ生活をはじめませんか?
太陽光発電も当社にお任せください。お気軽にご相談ください。
SANYO3.45キロワット:180万円(税込)
価格に含まれていない項目
- 地盤調査結果による地盤改良、基礎仕様変更
- 土地造成工事(伐採、伐根、造成)
- 屋外排水工事(浄化槽or下水管つなぎ込み)
- 給水管取り出し工事
- 上下水道負担金
- 寒冷地による仕様
ログハウススペック
| ログハウスキット |
※サイズ変更可能 |
|---|---|
| 1F | ・土台材(防腐防蟻処理材)・床根太材・床仕上材(パイン材28mm厚)・間仕切壁ログパネル(パイン材)・天井仕上材(パイン材)・スクリュージャッキ・巾木・廻り縁・額縁材・間仕切り間柱材 |
| 2F | ・床仕上材(パイン材28mm厚)・間仕切り壁ログパネル(パイン材)・天井仕上材(パイン材)・巾木・廻り縁・額縁材・間仕切り間柱材・床根太材・2F床下地(12mm) |
| 外壁 | 1Fログ壁・2Fログパネル |
| 屋根材 | ・破風材・鼻隠材・小屋組材・野地板・垂木受け金物、垂木つなぎプレート金物 |
| 階段材 | 階段材、手すり材(フィンランド・エストニア・中国輸入階段) |
| デッキ、ベランダ、バルコニー | 根太材、仕上げ材(防腐注入在) |
| 建具 | 窓(木製窓・ペアガラス・網戸付、枠付)、玄関ドア(木製ドア・ペアガラス、枠付) 内部ドア(木製ドア・枠付)、浴室アルミサッシ(ペアガラス:網戸付) |
施工概要
| 仮設工事 | 水盛・遣方・墨出、内外足場、屋根足場、仮設電気、養生、片付け |
|---|---|
| 基礎工事 | ベタ基礎(GL+400mm) |
| 建て方・大工造作工事 | 大工工事一式 |
| 屋根・板金工事 | ガルバニウム鋼板葺、屋根下葺、水切り加工(土台水きり、破風板水きり)・取付、棟換気取付、雨樋工事 |
| 塗装工事 | キシラデコール2回塗り(外壁、軒裏、額縁) |
| タイル工事 | 玄関テラコッタ工事 |
| 電気工事 | 幹線・分電盤工事、電灯配線、スイッチ・コンセント工事、TV配線、TEL配線、給排気工事、火災報知機、インターホン工事、照明器具(シーリングファン含む) |
| 給排水設備工事 | 屋内給排水工事、給湯工事、給湯器取り付け(エコキュート)、雨水桝工事 |
| 設備機器 | ※設備機器詳細欄参照 |
| その他工事 | 断熱材グラスウール16K高性能100mm(屋根、壁、床)、工事諸経費、確認申請、瑕疵保証保険、検査、クリーニング |
資金面もしっかりサポート
全宅住宅ローン「フラット35」と、JIOの安心ローンがご利用頂けます。資金面も弊社窓口で、しっかりサポート!!詳しくはスタッフまでお問い合わせ下さい。
ログハウスのブログランキングです。押して頂けると励みになります!!
最後までご覧いただきありがとうございます!
もしよろしければ、最後にこの記事をソーシャルメディアで共有してください。








