1. ログハウスキットの高原都市開発
  2. 建築実績
  3. Model-F様邸(長野県御代田市)

Model-F様邸(長野県御代田市)

木の香りにつつまれたワンちゃんも泊まれる貸ログハウス

F様は母屋を3年前に弊社にて建築、今回は隣土地に宿泊業のための小さなログハウスを建築させていただきました。

ワンちゃんも泊まれる貸ログハウス営業をします。

オープンは3月後半から4月になりますよ!木の香りにつつまれたログハウス。

是非ご利用下さいませ!

モデル名

Model-F様邸

地域 長野県御代田市
ログの種類

シベリアパイン中国ラミネート105×180㎜ 3層ラミネート

用途  
延べ床 10坪 (㎡) 
施 工

設計 :高原都市開発㈱  施工:高原都市開発㈱

建て方

2021年 10月

完 成

2022年   2月

備考  外壁:キシラデコール 
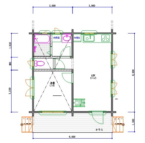
間取り

 

 


最後までご覧いただきありがとうございます!

もしよろしければ、最後にこの記事をソーシャルメディアで共有してください。

前後の記事



このページの先頭へ