Model-S様邸(長野県佐久市)
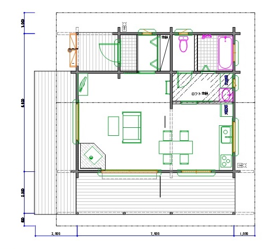
テラスも屋根がかかり ご夫婦とワンチャンが楽しめる十分な広さ
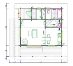
S邸様フリープランの15坪のコンパクトな平屋ログハウスになります。
テラスも屋根がかかり ご夫婦とワンチャンが楽しめる十分な広さになりますよ。
S邸様は凍結震度も考慮して90センチのベタ基礎になります。
ベタ基礎内は90センチまるまる1Fの広さがあるので写真のように基礎内収納となりますよ。
弊社の基礎は写真のように基礎内が有効活用する基礎方法が多いです。
床板に点検口を設ければいい収納庫になりますね。
| モデル名 |
Model-S様邸 |
|---|---|
| 地域 | 長野県佐久市 |
| ログの種類 |
・中国105㎜×180㎜ラミネートログ
|
| 用途 | |
| 延べ床 | 13坪 |
| 施 工 |
|
| 建て方 |
2021年 7 月 |
| 完 成 |
2021年 11月 |
| 備考 |
テラスお施主様施工 |
| 間取り |
|
最後までご覧いただきありがとうございます!
もしよろしければ、最後にこの記事をソーシャルメディアで共有してください。









