Model-W様邸(群馬県嬬恋村)
ミニログもフリープラン! 確認申請にも対応できるサイズになります。
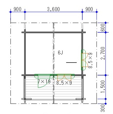
弊社ラインナップは4モデルありますが昨年末施工させていただいたミニログはmini1プランで6畳のミニログハウスになります。
お客様の要望でテラスを1m~1.5mに。伸ばしたテラスに屋根もかけさせていただきました。
電気図面も起こして電気穴もしっかり工場で加工してきました。
軒の出はミニログではほとんどしないでしょうけど弊社は標準で900㎜出させていただいてます。
正面から見た時 形が格好いいですよね~。
ログサイズは70mm×155㎜。 厚みは70㎜で有効高さは165㎜。 ダボ穴もしっかり開いていて確認申請もしっかり対応できるログ形状になります。
弊社は中国工場からダイレクトで現地に搬入できます! ミニログでも他社さんと比べて細かなお客様の要望に応えられますよ。
| モデル名 |
Model-W様邸 |
|---|---|
| 地域 | 群馬県嬬恋村 |
| ログの種類 |
・中国 70㎜×155㎜ 2層ラミネートログハウス |
| 用途 | |
| 延べ床 | 延床 約3坪 |
| 施 工 |
高原都市開発株式会社 |
| 建て方 |
|
| 完 成 |
2021年 12月 |
| 備考 |
|
| 間取り |
最後までご覧いただきありがとうございます!
もしよろしければ、最後にこの記事をソーシャルメディアで共有してください。















