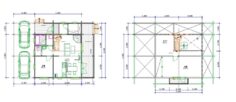
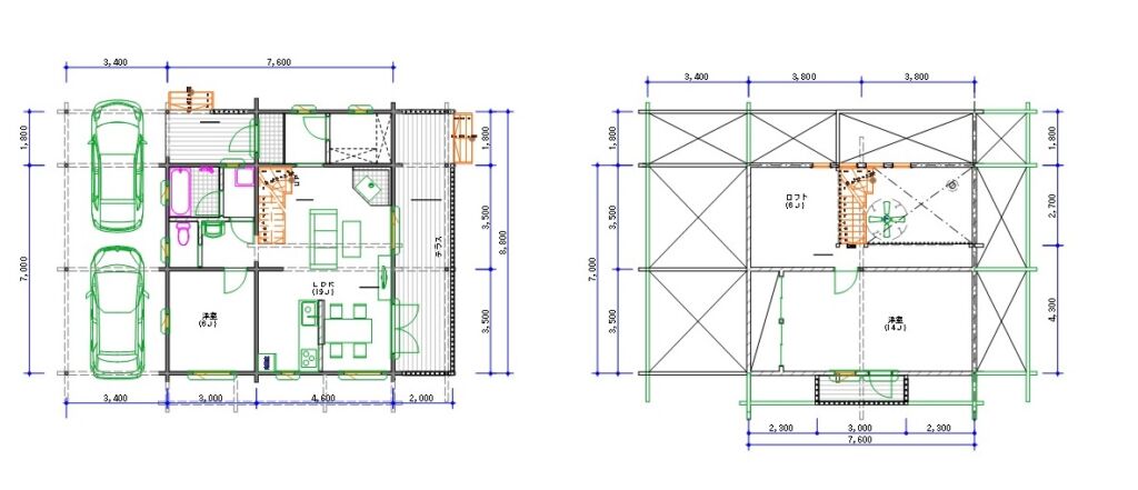
Model-N様邸(長野県茅野市)
ガレージ一体型の練りに練った自由設計のログハウス
N邸様は練りにねった自由設計!
N様と共同で作り上げたフリープランですが屋根が特徴で正面からの雰囲気格好いいですね!!
ガレージ一体型のログハウスになります。
エストニア北欧113m×180mラミネートログハウス、外部ドアは木製北欧ドアになりますよ。
| モデル名 |
Model-N様邸 |
|---|---|
| 地域 | 長野県茅野市 |
| ログの種類 | ・エストニア北欧パイン ラミネートログ 113×180㎜ |
| 用途 | |
| 延べ床 | 31坪 (㎡) |
| 施 工 |
設計 :高原都市開発㈱ 施工:高原都市開発㈱ |
| 建て方 |
2020年 11月 |
| 完 成 |
2021年 4 月 |
| 備考 | |
| 間取り |
N様オリジナルプラン |
最後までご覧いただきありがとうございます!
もしよろしければ、最後にこの記事をソーシャルメディアで共有してください。



























