Model-H様邸(長野県軽井沢町)
簡易宿所リノベーション!
H様は築30年の中古建物を昨年購入して簡易宿泊として事業をするためのリフォーム!!
リノベーションすればバブル期に建てた昭和イメージの室内がパッとスタイリッシュな空間になります!!
| モデル名 |
Model-H様邸 |
|---|---|
| 地域 | 長野県軽井沢町 |
| ログの種類 | |
| 用途 | 簡易宿所 |
| 延べ床 | |
| 施 工 |
|
| 建て方 |
|
| 完 成 |
2021年 3月 |
| 備考 |
|
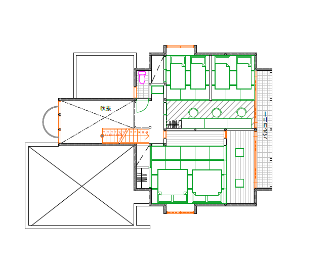
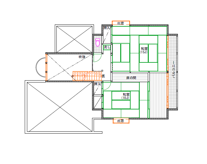
| 間取り |
|
最後までご覧いただきありがとうございます!
もしよろしければ、最後にこの記事をソーシャルメディアで共有してください。


























