Model-O様邸(長野県軽井沢町)
釘や金物を一切使わず強度を出すティンバフレーム工法
構造美が美しいティンバーフレーム!いやいや圧巻です!!。
これぞ職人技!外部漆喰壁、飾りの筋交いも格好よく入り、オイル塗装された飴色の室内構造柱が 深みを出しいい雰囲気になっております。
釘や金物を一切使わず強度を出すティンバフレーム工法。
ログハウスもそうですが、このティンバーフレーム工法も地震に備えられる建物です!
ちょっと違った家を建てたいという方! 是非弊社にお気軽にお問合せくださいね!
弊社はフレームを自社工場にて加工できます!
| モデル名 |
Model-O様邸 |
|---|---|
| 地域 | 長野県軽井沢町 |
| ログの種類 | |
| 用途 | |
| 延べ床 | 坪 (㎡) |
| 施 工 |
設計 : 施工:高原都市開発㈱ |
| 建て方 |
2020年 5月 |
| 完 成 |
2020年 12 月 |
| 備考 |
ティンバーフレーム セルロースファイバー断熱材施工 |
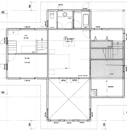
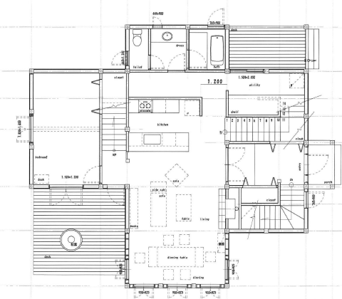
| 間取り | ![]() ![]() |
最後までご覧いただきありがとうございます!
もしよろしければ、最後にこの記事をソーシャルメディアで共有してください。




























