Model-M様邸(長野県御代田町)
135㎜D型ログをチョイスしたM様フリープランのカントリースタイル!
お施主さまにてセルフ塗装されました塗料はオリンピックのステイン系、色はダークダホ。ブラウンとクリアー色の配色が自然に溶け込んでいますね。格好いいです!!
2500㎜あるテラス空間が本当に素敵ですよ!
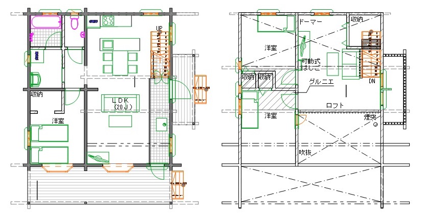
大手さんメーカーの外観にかなり似ていますが、そうですM様は大手さんの間取りを気に入られていた為、その間取りを弊社にてアレンジしM様のオリジナルプランとなりました。
カントリースタイルのM邸様のログハウスは中国134mのD型のログハウスになります!
| モデル名 |
Model-M様邸 |
|---|---|
| 地域 | 長野県御代田町 |
| ログの種類 |
105㎜×135㎜ D型中国ラミネートログ |
| 用途 |
住宅 |
| 延べ床 | 坪 (㎡) テラス・バルコニー㎡ |
| 施 工 | 設計 :高原都市開発㈱ 施工:高原都市開発㈱ |
| 建て方 |
2018年 8月 |
| 完 成 | 2018年 11月 |
| 備考 |
・ セルフペイント ・ 出窓(マービン社) ・太陽光発電 |
| 間取り |
M様オリジナルプラン |
最後までご覧いただきありがとうございます!
もしよろしければ、最後にこの記事をソーシャルメディアで共有してください。

























