Model-O様邸(北海道長沼町)
セルフペイントの切妻折れ屋根スタイルのログハウス!
今回請負工事は北海道長沼町、萩工務店さんの工事となります。
萩工務店さんとO様にて請負契約を交わし、弊社と萩工務店さんがログキット契約、
弊社が建て方のお手伝いをするという形で参加させていただきました。
萩工務店さんとはお付き合いが長く北海道由仁町で15年ほど前に建築させていた以来、
弊社ログハウス4件お世話になっております。
北海道長沼町エリアでログハウスを検討されているお客様、
是非萩工務店の「しろくまログ」をご検討下さい。
| モデル名 |
Model-O様邸 |
|---|---|
| 地域 | 北海道長沼町 |
| ログの種類 |
105㎜×175㎜中国ラミネートログ シベリアレッドパイン |
| 用途 |
住宅 |
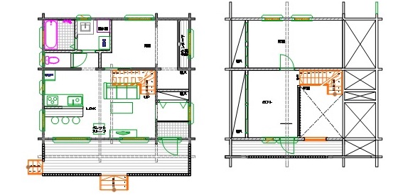
| 延べ床 | 27.18坪 89.86(㎡) テラス・バルコニー24.20㎡ |
| 施 工 | 設計 :高原都市開発㈱ 施工:㈱萩工務店 |
| 建て方 |
2018年 10月 |
| 完 成 | 2018年 12月 |
| 備考 | セルフペイント |
| 間取り |
KH-25アレンジプラン |
最後までご覧いただきありがとうございます!
もしよろしければ、最後にこの記事をソーシャルメディアで共有してください。





