Model-H様邸(長野県軽井沢町)
北欧テイストばっちりなログハウス
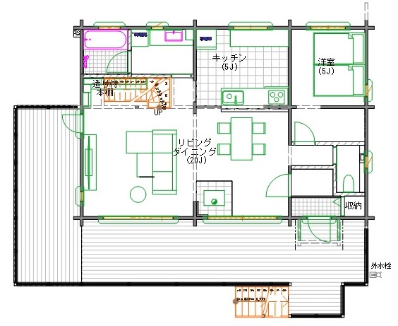
シベリアパイン115㎜のログハウスになります。H邸様はフリープラン。時間をかけてH様とつくりあげた素敵なプランですよ。
高基礎なので建物の迫力もありますし、室内からの解放感もありますよ。
掃き出し窓も大きいのでリビングは明るく広々しています。高基礎なのでリビングからの眺望もいいですよ。
外部はフィンランドカラーのティックリラで塗装。やっぱりティックリラは他の塗料と雰囲気少し違うんだよな~。
北欧テイストばっちりなログハウスですね。
| モデル名 |
Model-H様邸 |
|---|---|
| 地域 | 長野県軽井沢町 |
| ログの種類 |
シベリアレッドパイン ・115㎜×180㎜3層 中国加工ラミネートログ |
| 用途 | 別荘 |
| 延べ床 | 38坪 |
| 施 工 |
高原都市開発㈱ |
| 建て方 |
2022年 12月 |
| 完 成 |
2023年 4月 |
| 備考 |
ティックリラ |
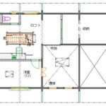
| 間取り |
H様オリジナルプラン |
最後までご覧いただきありがとうございます!
もしよろしければ、最後にこの記事をソーシャルメディアで共有してください。




























